Nueva promoción de 8 casas de obra nueva en Hostalric
Casas situadas en una de las mejores zonas de la población

Municipio: Hostalric
Datos de contacto


Descripción
Nueva promoción de 8 casas de obra nueva en Hostalric.Construidas en una de las mejores zonas de la población.
Casas con sistema de aerotérmica para calor y frío, que hace que sean de alto nivel energético, aire acondicionado y calefacción por conducto.
Viviendas verdes con una tecnología eco amigable lo que hace que los gastos y mantenimiento sean mucho más reducidos que en una vivienda convencional.
Arquitectura innovadora, viviendas especiales y únicas en la zona de diseño contemporáneo y estilo vanguardista y con una construcción futurista que hace que su nueva casa sea más confortable y eficiente.
Planta baja a nivel de calle, entrada a la vivienda con amplio espacio abierto de cocina/comedor de 25 m2 con salida al jardín de 37 m2, baño completo con plato de ducha.
Dispone de zona de aparcamiento situado en la entrada de la finca, para 2 coches.
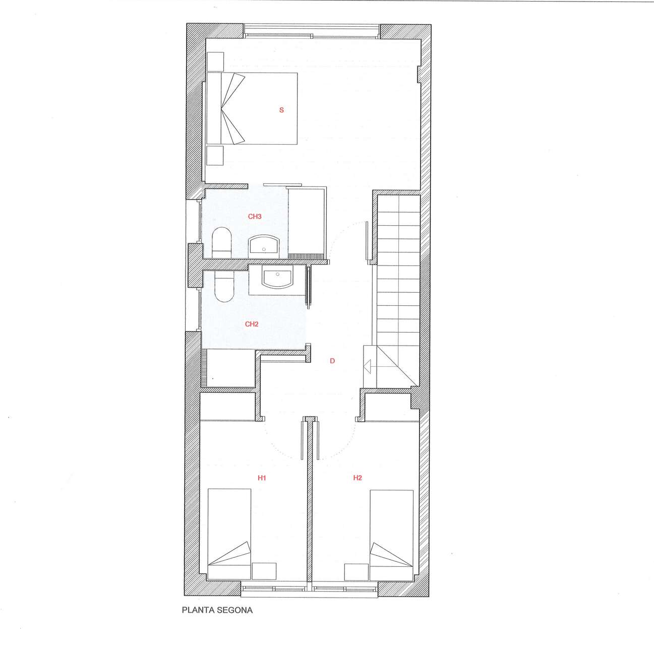
Sala de estar de 38 m2 con vistas panorámicas y soleado, 3 dormitorios (un tipo suite con baño completo), consta de otro baño completo para el resto de dormitorios.
Estudio en la última planta de 21 m2, con espectaculares vistas, para que cada uno se la acomode a sus necesidades, espacio totalmente polivalente.
Pida información sin compromiso, estaremos encantados de atenderle y acompañarle a la misma obra para que pudiera apreciar sus características.
Características
Terreno: | 37 m2 | Tipo de obra: | Obra nueva |
---|---|---|---|
Parking: | Sí | Jardín: | 37 m2 |
Calefacción: | Individual | Aire acondicionado: | Sí |
Salas: | 1 | Comedores: | 1 |
Orientación: | Sur | Eficiencia energética: | En trámite |